Les éléments de mission :
- Audit énergétique et préconisations de travaux
- Réalisation des plans
- Assistance à la consultation des entreprises et au dépouillement des offres
- Coordination des travaux
Rez-de-chaussée : local professionnel
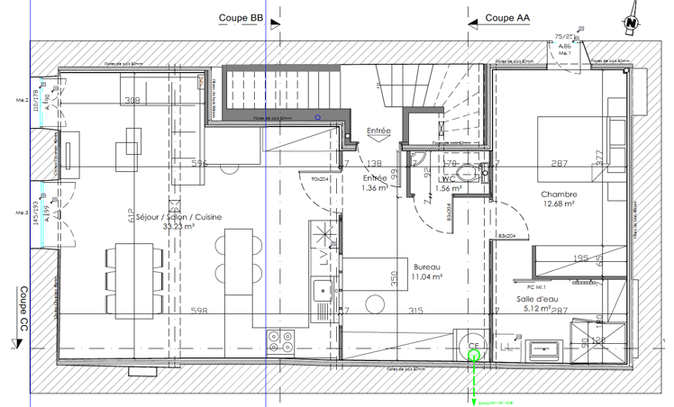
1er étage : appartement type F2
